BV2-1500-1220x1300 - cântar pentru saci mari 1500 kg
| Disponibilitate: | de obicei în termen de 3 săptămâni |
| Producător: | Format 1 Ltd. |
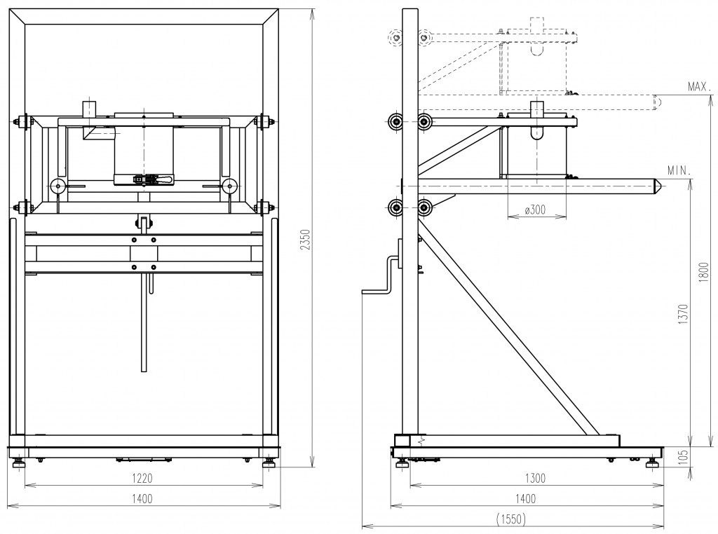
Cântar pentru saci mari de până la 1100 x 1100 x 1400 mm (l x l x h) cu știfturi pe cadrul de susținere pentru inelele de fixare pentru saci mari.
Este destinat umplerii cu greutate sau cântăririi sacilor de volum mare deja finisați - saci mari.
Comparativ cu tipul BV1, cântarul pentru saci mari din seria BV2 este echipat cu o ridicare mecanică pentru mișcarea verticală a cadrului de susținere cu știfturi.
Un transportor cu șnec, un alimentator vibrator, un transportor cu bandă etc. pot fi utilizate ca dispozitiv de umplere.
Cântar robust cu atașament pentru agățarea ochiurilor pentru pungi mari. Înălțime reglabilă pentru diferite dimensiuni de pungi mari.
Complet deschis pe o parte pentru manipularea sacului mare, de exemplu, cu ajutorul unui stivuitor.
Strângerea gâtului sacului mare cu un manșon - etanșare, minimizarea prafului.
Conectarea gâtului prin manșon la tehnologia înconjurătoare.
O modalitate simplă de a cântări saci mari.
Cântarul este livrat fără ramă de protecție. Rama de protecție este un accesoriu opțional.












